価格
1,750万円
-
地域東温市方面
-
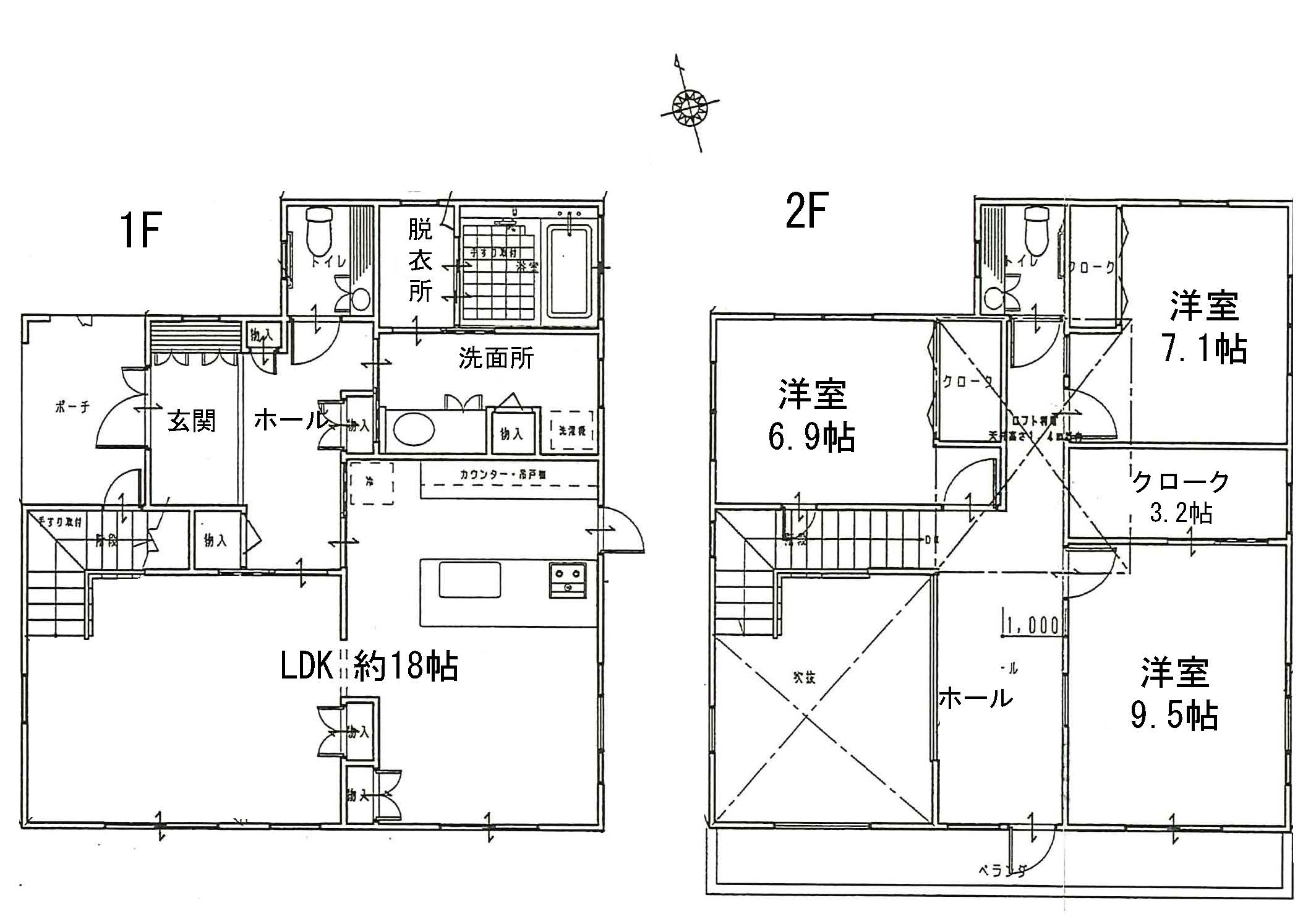
間取り3SLDK
-
土地状況上物有
-
土地面積215.46㎡ 65.17坪
-
築年月H17.11月
-
建物面積142.82㎡ 43.20坪
-
地目宅地
詳細
-
現状居住中
-
引渡条件R8.4月中旬以降
-
ガスプロパンガス
-
水道公営
-
汚水公共下水
-
雑排水
-
駐車場3台可
-
駐車場備考
-
土地権利所有権
-
都市計画市街
-
用途地域工業
-
他区域
-
建ぺい率60%
-
容積率200%
-
小学校区川上
-
中学校区川内
-
名称
-
構造木造瓦葺2階建
-
交通環境電停横河原駅:徒歩16分
バス停茶堂:徒歩7分 -
接面道路北4.35m(公道)
-
備考
取引態様:一般媒介
・メーターモジュール
・電気自動車用充電器
・セコム付き

「No.8775 東温市南方 物件」です。
見学や空室状況などをお問合せください。
【物件ポイント】
太陽光発電システム・薪ストーブ・屋根裏あり