価格
4,180万円
-
地域久米方面
-
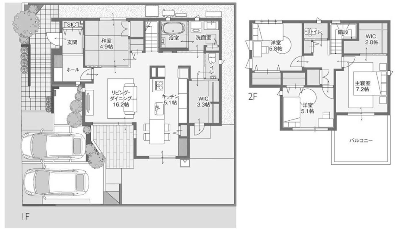
間取り4SLDK
-
土地状況上物有
-
土地面積166.74㎡ 50.43坪
-
築年月H30.5月
-
建物面積116.78㎡ 35.32坪
-
地目宅地
詳細
-
現状居住中
-
引渡条件相談
-
ガス
-
水道公営
-
汚水浄化槽
-
雑排水
-
駐車場2台可
-
駐車場備考
-
土地権利所有権
-
都市計画市街
-
用途地域近商
-
他区域
-
建ぺい率80
-
容積率200%
-
小学校区久米
-
中学校区久米
-
名称
-
構造軽量鉄骨造瓦葺2階建
-
交通環境電停北久米駅:徒歩12分
バス停久米支所前:徒歩14分 -
接面道路西4.7m(公道)
-
備考
取引態様:仲介
・令和9年3月末までに下水整備予定(引込む場合は切替費用、下水道負担金あり)

「No.8755 松山市南久米町 物件」です。
見学や空室状況などをお問合せください。
【物件ポイント】
パナホームの家・生活便利